Objektart
Adresse
Objektdaten
Informationen
Ausstattung
Details
Das Haus liegt in einem ruhigen Wohngebiet in Schwaförden.
- ca. 120 m² Wohnfläche
- ca. 396 m² Grundstück
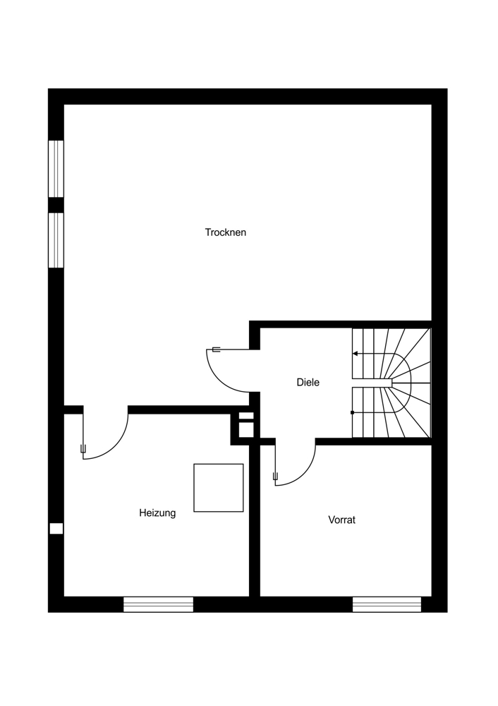
- 5 Zimmer, Küche, Bad und Gäste-WC auf drei Etagen
- Kaminanschluss im Wohnzimmer möglich
- Gäste-WC erweiterbar zum Bad
- hochwertige Einbauküche und Einbauschränke
- Schlafzimmer mit begehbarem Kleiderschrank
- ausgebauter Dachboden
- Fenster mit elektrischen Rollläden
- überdachte Terrasse
- voll unterkellert mit Drainage
- Garage und Carport
- schöner, gepflegter Garten
Gerne erfahren Sie weitere Details im persönlichen Gespräch mit uns! Senden Sie uns eine Anfrage und wir werden mit Ihnen Kontakt aufnehmen.
Bitte nutzen Sie für den Erstkontakt das Kontaktformular. Sobald Sie dieses vollständig ausgefüllt an uns übermittelt haben, erhalten Sie das gewünschte Exposé und wir nehmen mit Ihnen Kontakt auf.
HINWEIS :
Leider wird unsere Branche vermehrt von Spam-Attacken heimgesucht. Wir bitten Sie deshalb, uns Ihre kompletten Kontaktdaten (Name, Adresse, Email-Adresse und Telefonnummer) anzugeben. Nur dann können wir auf Ihre Email-Anfrage reagieren und sie bearbeiten.
Schwaförden liegt ca. 50 km von Bremen entfernt. Schulen und Kindergarten bieten Familien viele Möglichkeiten. Die 14.000 Einwohner-Stadt Sulingen ist nur ca. 5 km entfernt, in der zahlreiche Einkaufsmöglichkeiten, Freizeit- und Gastronomieangebote sowie umfassende Angebote medizinischer Versorgung vorhanden sind.
Es besteht weiterhin eine gute Bus-Verbindung nach Bassum, von wo aus man mit der Bahn nach Bremen und Osnabrück gelangt.
Die Gemeinde ist Verwaltungssitz der Samtgemeinde Schwaförden.
Alle weiteren Informationen zu Schwaförden finden Sie unter: www.schwafoerden.de
Übernahmetermin: ab Spätsommer 2026
Vereinbaren Sie gerne einen unverbindlichen und kostenfreien Besichtigungstermin mit uns.
Ihr zuständiger Ansprechpartner ist Herr Claas Gerdes:
Tel.: 04271 - 9275177 * Fax: 04271 - 9275178
Bitte geben Sie uns bei Kontaktaufnahme per E-Mail Ihre Rufnummer mit an. Wir melden uns dann kurzfristig unter dieser Nummer - Herzlichen Dank!
Bei telefonischer Kontaktaufnahme geben Sie uns bitte die interne ANBIETER-OBJEKT-NUMMER an. So können wir Sie schnellstmöglich mit weiterführenden Informationen bedienen - auch hierfür herzlichen Dank!
Alle Angaben in diesem Exposé wurden sorgfältig und so vollständig wie möglich gemacht. Trotzdem können Fehler nicht ausgeschlossen werden.
Die Angaben in diesem Exposé sind ohne jede Gewähr. Nur die im Kaufvertrag / Mietvertrag geschlossenen Vereinbarungen gelten. Veröffentlichte Grundrissgrafiken und eventuell darin enthaltenen Maßangaben sowie Einrichtungen sind nicht maßstabsgetreu. Hierfür wird jegliche Haftung ausgeschlossen.
Ansprechpartner
Telefax: 004942719275178
mail@dievorsorge.de
Energieausweis (Verbrauchsausweis)
159,90 kWh / (m²*a) Energieverbrauchskennwert
159,90 kWh / (m²*a) Energieverbrauchskennwert
159,90 kWh / (m²*a) Energieverbrauchskennwert
Weitere Informationen
| Wesentlicher Energieträger | GAS |
| Energieausweis gültig bis | 2036-03-02 |
| Energieausweis Jahrgang | ab dem 1.5.2014 |
| Energieausweis Werteklasse | E |
| Energieausweis Baujahr | 1981 |
| Energieausweis Gebäudeart | Wohngebäude |
| Heizung | Zentralheizung |
| Befeuerung | Gas |
Ich bin damit einverstanden, dass mir Karten von Google angezeigt werden. Es gelten die Datenschutzbedingungen von Google (https://policies.google.com/privacy).
Ich bin einverstanden