Helle 3 Zimmer Erdgeschoss-Wohnung mit kleinem Garten in ruhiger Wohngegend in Sulingen zu verkaufen
Objektart
Adresse
Objektdaten
Informationen
Ausstattung
Details
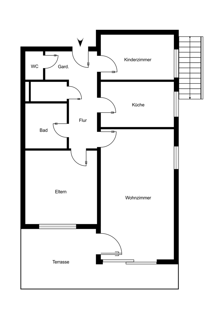
Diese schöne Erdgeschosswohnung ist ebenerdig und liegt in einem ruhigen, aber dennoch zentralem Wohngebiet in Sulingen. Besonders hervorzuheben sind die nach Süden ausgerichtete Terrasse mit kleinem Garten, sowie die Garage mit kleinem Vorraum, von wo aus man direkt ins Haus gelangt.
- ca. 82 m² Wohnfläche
- 3 Zimmer, Küche, Bad, separates WC und Abstellraum
- teilüberdachte Terrasse mit kleinem Garten
- frisch renoviert
- Warmwasserversorgung im Bad über einen neuen Elektrowarmwasserspeicher (2025)
- Garage mit Vorraum, elektrischem Tor und direktem Zugang zum Haus
- zusätzlich zum Garagenvorraum ein weiterer Abstellraum im Keller
Die Wohnung ist nicht vermietet und kann direkt übernommen werden.
Gerne erfahren Sie weitere Details im persönlichen Gespräch mit uns! Senden Sie uns eine Anfrage und wir werden mit Ihnen Kontakt aufnehmen.
Bitte nutzen Sie für den Erstkontakt das Kontaktformular. Sobald Sie dieses vollständig ausgefüllt an uns übermittelt haben, erhalten Sie das gewünschte Exposé und wir nehmen mit Ihnen Kontakt auf.
HINWEIS :
Leider wird unsere Branche vermehrt von Spam-Attacken heimgesucht. Wir bitten Sie deshalb, uns Ihre kompletten Kontaktdaten (Name, Adresse, Email-Adresse und Telefonnummer) anzugeben. Nur dann können wir auf Ihre Email-Anfrage reagieren und sie bearbeiten.
Die Wohnung befindet sich in einem Mehrfamilienhaus, welches in einem ruhigen, aber dennoch zentralem Wohngebiet in Sulingen liegt.
Sulingen liegt verkehrsgünstig im Städtedreieck Hannover, Bremen und Osnabrück und ist ein aufstrebendes Mittelzentrum mit einer hervorragender Infrastruktur. Die Innenstadt bietet zahlreiche Einkaufsmöglichkeiten, Freizeit- und Gastronomieangebote. In fußläufiger Entfernung befinden sich alle Schulformen und Kindergärten sowie umfassende Angebote medizinischer Versorgung.
Über das schöne und lebenswerte Sulingen finden Sie detaillierte Informationen unter www.sulingen.de
Übernahmetermin: nach Absprache
Vereinbaren Sie gerne einen unverbindlichen und kostenfreien Besichtigungstermin mit uns.
Ihr zuständiger Ansprechpartner ist Herr Claas Gerdes
Tel.: 04271 - 9275177 * Fax: 04271 - 9275178
Bitte geben Sie uns bei Kontaktaufnahme per E-Mail Ihre Rufnummer mit an. Wir melden uns dann kurzfristig unter dieser Nummer - Herzlichen Dank!
Bei telefonischer Kontaktaufnahme geben Sie uns bitte die interne ANBIETER-OBJEKT-NUMMER an. So können wir Sie schnellstmöglich mit weiterführenden Informationen bedienen - auch hierfür herzlichen Dank!
Alle Angaben in diesem Exposé wurden sorgfältig und so vollständig wie möglich gemacht. Trotzdem können Fehler nicht ausgeschlossen werden.
Die Angaben in diesem Exposé sind ohne jede Gewähr. Nur die im Kaufvertrag / Mietvertrag geschlossenen Vereinbarungen gelten. Veröffentlichte Grundrissgrafiken und eventuell darin enthaltenen Maßangaben sowie Einrichtungen sind nicht maßstabsgetreu. Hierfür wird jegliche Haftung ausgeschlossen.
Ansprechpartner
Telefax: 004942719275178
mail@dievorsorge.de
Energieausweis (Verbrauchsausweis)
164 kWh / (m²*a) Energieverbrauchskennwert
164 kWh / (m²*a) Energieverbrauchskennwert
164 kWh / (m²*a) Energieverbrauchskennwert
Weitere Informationen
| Wesentlicher Energieträger | GAS |
| Energieausweis gültig bis | 2035-11-17 |
| Energieausweis Jahrgang | ab dem 1.5.2014 |
| Energieausweis Werteklasse | F |
| Energieausweis Baujahr | 1973 |
| Energieausweis Gebäudeart | Wohngebäude |
| Heizung | Zentralheizung |
| Befeuerung | Gas |
Ich bin damit einverstanden, dass mir Karten von Google angezeigt werden. Es gelten die Datenschutzbedingungen von Google (https://policies.google.com/privacy).
Ich bin einverstanden